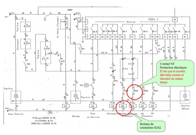
Contacteur KM2
la fonction du contacteur :
Etablir et interrompre le circuit de puissance
la fonction du contacteur :
Etablir et interrompre le circuit de puissance
Créez votre propre site internet avec Webador